Обяви За нас Контакти
Продава 3-СТАЕН
област Добрич, с. Топола
123 380 €
241 310.31 лв.

(1 082 €, 2 116.21 лв./m2)
Цената е с включено ДДС
История на цената
Коригирана в 11:39 на 29 октомври, 2025 год.
Обявата е посетена 789 пъти.
Площ:
114 m2
Етаж:
2-ри от 4
Газ:
НЕ
ТEЦ:
НЕ
Строителство:
Тухла, 2025 г.

Описание на имота:


Двустайни и тристайни апартаменти в жилищен комплекс от затворен тип, разположен между градовете Балчик и Каварна, на метри от морския бряг. Отлична инвестиция!
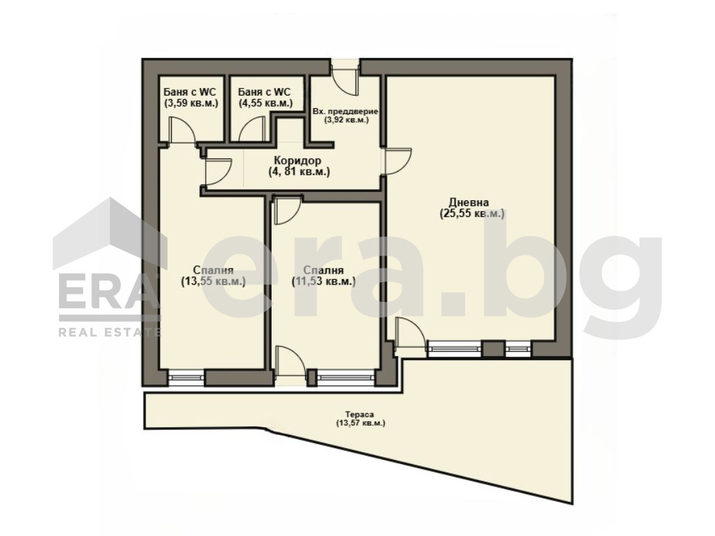
ЕРА Визия предлага за продажба тристаен апартамент разположен на 2 етаж от общо 4, в новостроящ се комплекс в близост до с. Топола, на единствената земя по Северното черноморие, където е разрешено строителство, в средата на белите скални образувания и златните плажове между Балчик и нос Калиакра. Имотът е с площ 114,12 кв.м., ( с общите части) и 97,28 кв.м (ЧЖП), разпределени в: преддверие с обособено място за гардероб (3,92 кв.м), коридор (4,81 кв.м), дневен тракт с кухненски бокс и трапезария (25.55 кв.м), спалня (11,53 кв.м.), родителска спалня (13,55 кв.м.) с баня (3,59 кв.м.), килер (0,72 кв.м.), втора баня с тоалет (4,55 кв.м.), тераса с излаз от едната спалня и дневната (13,57 кв.м.). Апартаментът е с морска панорама, среден, с изцяло южно изложение. Предлага се в степен на завършеност по БДС, като има възможност да бъде завършен до ключ, както и да бъде обзаведен. Подходящ е за целогодишно живеене и/или за отдаване под наем.

Първият етап от строителството включва изграждането на три четириетажни сгради, състоящи се от общо 29 апартамента с изглед към морето, с по една или две спални. Предвидени са три схеми на плащане:
20/20/20/20/20; 50/50 и 20/80. Възможност за закупуване на паркомясто. Срок на завършване - юни 2025г.

Намира се в близост до: 5 малки магазина, на 10 мин. от магазин Лидл (в Балчик и Каварна), на 5 мин. от множество ресторанти в Балчик, на 5 мин от Тузлата (най - големият курорт за лечение с кал и минерална вода в Източна Европа), голф игрища, плаж Бяла Лагуна, плаж Бендида, плаж Герои, плаж Аргата, плаж Бял бряг.

Комплексът ще предлага:
- бърз Wi - Fi и специални оптични кабели във всеки апартамент;
- модерни фоайета и асансьори от висок клас във всяка сграда;
- 24/7 охрана на място, както и CCTV видеонаблюдение;
- 29 външни паркоместа (някои покрити);
- 2 зарядни устройства за електрически автомобили Wallbox (1 kw);
- голям басейн с минерална вода, подходящ за деца и възрастни;
- открито джакузи с минерална вода, достъпна 365 дни в годината;
- услуги по почистване при поискване;
- достъп до медицинско обслужване;
- обезопасена зона за кучета на разположение на жителите и техните домашни любимци;
-трансфер до близките голф игрища или плажове.

Други вълнуващи дейности в района: яхтени, риболовни и ловни турове, достъп до Водни паркове в Албена, конна езда на плажа, спортни дейности, включително туризъм, парапланеризъм, футбол, тенис и др.

Дивата природа на региона, съчетана с ексклузивността на наличните курорти, предлагащи спиращи дъха гледки тишина и спокойствие , може лесно да ви накарат да си мислите, че сте се телепортирали в Южна Франция. Разбира се, кратко 40-минутно пътуване до Варна може да ви помогне да стигнете до всяка дестинация по света, особено след като летище Истанбул е само на 30 минути със самолет. За тези, които предпочитат да пътуват по-ексклузивно, се предлагат чартърни услуги с частен самолет от летище Балчик, само на 5 минути от комплекса, до почти всяка дестинация в Европа.

ЕРА е независим кредитен посредник към БНБ и предоставя безплатна консултация и съдействие при финансиране на избрания от Вас имот... Код: 5300999
Виж всички обяви в eravizia.bazar.bg или тук
Особености
Тухла
В строеж
Асансьор
Видео наблюдение
Контрол на достъпа
Охрана
Саниран
В затворен комплекс
За контакт:
0898533570
Брокер:
Гюркан Риза
0898533570
Офис: ЕРА Визия
Още оферти от брокера: Продава | Дава под наем | Купува | Наема
Агенция:
ЕРА ВИЗИЯ
0898533570
ЕРА ВИЗИЯ logo
Медал за прослужено време
В imot.bg от 2022 г.
eravizia.imot.bg
Адрес:
област Варна, гр. Варна, бул. 'Трети март' 39
http://era.bg
ИЗПРАТИ ЗАПИТВАНЕ
ИЗПРАТИ ЗАПИТВАНЕТО

Продава 3-СТАЕН
област Добрич, с. Топола
Обява: 1c172499877805925

123 380 €
241 310.31 лв.
История на цената
(1 082 €, 2 116.21 лв./m2)

Цената е с включено ДДС
ЗАПАЗИ ОБЯВАТА

Местоположение: област Добрич, с. Топола